Telefonas: +37067103966
El. paštas: [email protected]
Privatumo politika

Parduodami nauji 98 kv. m namai Užukampyje, Trakų r.

Greita santrauka

Kaina
249000.00 €
Vieta
Trakų r. sav. , Užukampis , Užukampio g.
Objekto Tipas
Namas
Veiksmas
Pardavimas
Objekto būklė
Įrengtas
Šildymas
Elektra
Aukštas
1
Kambarių sk.
4
Statybos metai
2025
Bendras plotas
98.00 m2

Aprašymas

Objekto ID:16128

Parduodami pilnai įrengti, vieno aukšto, 98 kv. m. individualūs namai su 8 arų sklypu Užukampio km., Trakų r.
Namai A++ energetinio naudingumo klasės, šildomi oras-vanduo šilumos siurbliu, name bus išvedžiotas grindinis šildymas, taip pat rekuperatorius.
Namai bus įrengti iki pilnos apdailos, sklypo teritorija aptverta, išklota trinkelėmis, asfaltuotas privažiavimas iki namų kvartalo, kvartalo įvažiavimas su užtvaru.
Solidi naujų namų kaimynystė, iki Vilniaus Senamiesčio 18 km.

KAINA SKELBIME NURODYTA BE VIRTUVĖS.

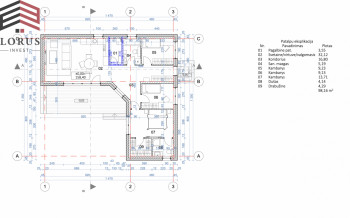
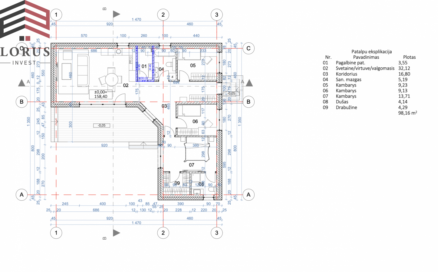
NAMO IŠPLANAVIMAS:
-- Erdvi svetainė sujungta su virtuvė;
-- Pagrindinis miegamasis su drabužine ir atskiru vonios kambariu;
-- Du mažesni miegamieji;
-- Vonios kambarys;
-- Katilinė;
-- Koridorius;
-- Terasa.

NAMO ĮRENGIMAS:
-- Sienos tarp kambarių: gipso kartonas, sienos dažytos;
-- Pamatai: gręžtiniai poliniai;
-- Langai: plastikiniai REHAU langai;
-- Stogas: classic skarda, apšiltinta 25 cm vata ir 10 cm poliuretano plokšte;
-- Lubos: įtempiamos;
-- Grindys: vinilinė danga;
-- Namo sienos: dujų silikato blokeliai, apšiltinta 25 cm neoporu;
-- Fasadas: dekoratyvinis tinkas.

PRIVALUMAI:
-- Naujai įrengtas, dar negyventas namas;
-- Pilna apdaila, įrengti san. mazgai;
-- Asfaltuotas privažiavimas iki kvartalo;
-- Segmentine tvora aptvertas kiemas;
-- Trinkelėmis išklotas kiemas, vietos automobiliams;
-- A++ energetinio naudingumo klasė.

KOMUNIKACIJOS:
-- Šildymas: oras-vanduo šilumos siurblys, šildoma grindiniu šildymu;
-- Rekuperatorius;
-- Vanduo: gręžinys;
-- Kanalizacija: vietinė kiekvienam namui, su valymo įrenginiu;
-- Elektra: 7 kW;
-- Boileris.

VIETA:
-- Naujų namų kvartalas, solidi, tvarkinga kaimynystė;
-- 18 km iki Vilniaus Senamiesčio;
-- 1.1 km iki maisto prekių parduotuvės NORFA;
-- 950 m iki autobusų stotelės;
-- Apie 3 km iki artimiausių vaikų darželių ir mokyklų;
-- 5 km iki Lentvario, kuriame yra geležinkelio stotis, parduotuvės, mokymo įstaigos;
-- 10 km iki Trakų.

Dėl papildomos informacijos galite kreiptis Jums patogiu metu.

Objekto ID:16128

Kontaktinis agentas

Marius Dilys

Telefonas / Mobilus:
+37066611661
El. paštas:
[email protected]